180000 €
T2 neuf bbc au coeur de talence
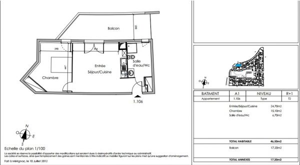
Joli t2 de 46,5 m² avec une grande loggia de 17 m² au 1er étage d'un programme immobilier bbc situé en plein centre de talence composé de deux bâtiments articulés autour d'un jardin paysagé. le projet s'élève sur 2 niveaux de sous-sol, une partie du rdc est dédiée à des commerces et les 4 étages sont destinés à l'habitation. bordeaux est à dix minutes en tramway.
son prix est de 180.000 €.
la livraison est prévue au 2° trimestre 2015.
d'autres appartements sont disponibles dans ce programme et dans la cub. n'hésitez pas à me contacter.
natacha vincent
defiscavous
conseil en investissement patrimonial
bordeaux-libourne
rsac 440 030 310
tel : 06 28 66 44 46
mail : tachapro@gmail.com
site : http://www.defiscavous.fr/

Annonce : 996
Publiée le : 18 Janvier 2013
Par : Tachapro
Membre depuis : 26 Mai 2011
Type : Particulier Raison Sociale :
Siren :

Région : Aquitaine Limousin Poitou C. (Nouvelle Aquitaine)
Département : Gironde
Ville : Talence
Nombre de visites : 867

Localisation de l'annonce