154000 €
T2 neuf bbc le haillan proche bordeaux
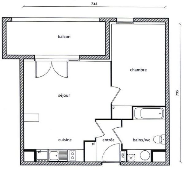
Ce beau t2 de 44 m² avec balcon et parking bénéficie d'un emplacement exceptionnel tout près du centre ville, proche des commerces, crèches, groupes scolaires, centres de loisirs et de multiples installations culturelles et sportives.
les grandes façades de ce projet aux lignes épurées, sont dotées de larges ouvertures, loggias, balcons et terrasses, pour profiter de l'ensoleillement. en rez-de-jardin, les logements sont agrandis d'un carré de verdure privatif.
sa livraison est prévue pour fin 2014.
d'autres appartements sont disponibles, alors contactez-moi.

natacha vincent
conseil en investissement patrimonial
defiscavous bordeaux - libourne
rsac 440 030 310
tel : 06 28 66 44 46
http://www.defiscavous.fr/
mail : tachapro@gmail.com

Annonce : 967
Publiée le : 05 Décembre 2012
Par : Tachapro
Membre depuis : 26 Mai 2011
Type : Particulier Raison Sociale :
Siren :

Région : Aquitaine Limousin Poitou C. (Nouvelle Aquitaine)
Département : Gironde
Ville : Le haillan
Nombre de visites : 851

Localisation de l'annonce